LivIng variant Kubus 6º
Een Twin-systeem met een uniek ontwerp
Het Schüco LivIng Variant kunststofsysteem is een baanbrekend 6+1-kamersysteem dat speciaal is ontworpen om de perfecte uitstraling van houten ramen na te bootsen. Met de strakke hoekige variant biedt dit systeem ongekende mogelijkheden om aan de hoogste esthetische eisen te voldoen.
Superieure isolatie en verhoogde veiligheid
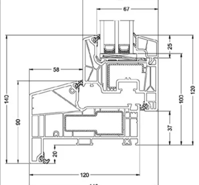
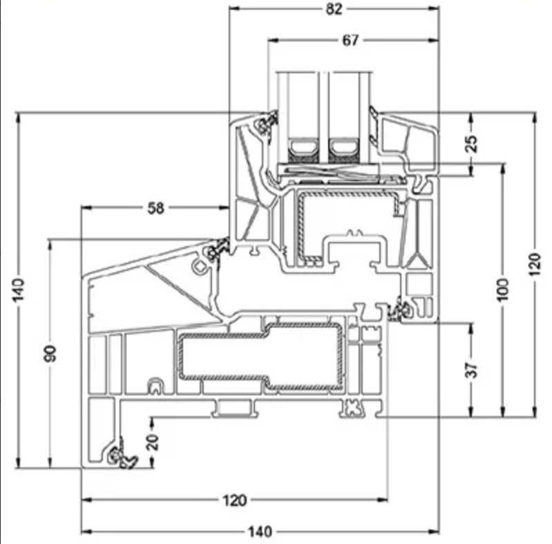
Met een bouwdiepte van 120 mm en een doordachte kamerindeling excelleert Schüco LivIng Variant in thermische isolatie, wat bijdraagt aan een energiezuinig en comfortabel binnenklimaat. De grotere bouwdiepte zorgt daarnaast voor extra veiligheid: het verdiept liggende beslag voorkomt dat inbrekers eenvoudig toegang krijgen.
Innovatieve afdichtingstechnologie
Het systeem is voorzien van de eerste lasbare EPDM-afdichting. Dit elastische, lasbare materiaal verbetert de afdichting op kritieke punten, zoals hoeken, en zorgt voor een strakke, naadloze afwerking zonder harde randen. Deze duurzame en milieuvriendelijke afdichting behoudt zijn kwaliteit gedurende de gehele levensduur van het raam en biedt optimale bescherming tegen tocht, kou, vocht en geluid.
Design mogelijkheden op maat
De profielen van Schüco LivIng Variant zonder folie zijn uitgerust met stijlvolle zilvergrijze afdichtingen, terwijl de foliebeklede varianten worden geleverd met zwarte afdichtingen. Er zijn tevens witte en crèmewitte profielkleuren beschikbaar, wat flexibiliteit biedt in de uitvoering.
Voor een exclusieve uitstraling kan gekozen worden voor de glanzende oppervlaktetechnologie Schüco AutomotiveFinish of een breed scala aan hout- en decoratiefoliën, waarmee unieke accenten aan gevels kunnen worden toegevoegd. U kunt natuurlijk ook de 15º en de 6º variant combineren, hierdoor ontstaat maximale flexibiliteit voor een persoonlijk en onderscheidend ontwerp.
Duurzaam en recyclebaar
Schüco LivIng Variant is volledig recyclebaar, wat het een milieuvriendelijke keuze maakt zonder concessies te doen aan design en prestaties.
Kies voor Schüco LivIng Variant Kubus 6º en combineer modern design met maximale functionaliteit en duurzaamheid. Perfect voor elk renovatie- of nieuwbouwproject.
Voordelen LivIng variant Kubus 6º
- Verschillende versterkingsprofielen in kozijn en vleugel zorgen afhankelijk van de statische vereisten voor optimale stabiliteit en een lange levensduur van de ramen
- Schroefbevestiging van hoeklager in de vleugel door speciale schroefkanalen
- Zichtbare of verdekte kozijnontwatering, al naar gelang de bouwsituatie mogelijk op meerdere niveaus
- Een optionele sponning in het kozijn zorgt voor een eenvoudige afdekking van de binnenwand door middel van geschikte kunststof hoeken.
- Goede stabiliteit van de elementen en een hoge mate van stijfheid in de kozijnconstructie dankzij optimale bevestiging via de schroefkanalen in de profielen
- In de fabriek ingerolde, lasbare EPDM-afdichtingen met identieke doorsneden voor glasafdichting en aanslagdichting
- De aanslagafdichting voor de vleugel in het schaarlagerbereik hoeft niet meer te worden uitgeklinkt
Eigenschappen LivIng variant 6º
Systeembouwdiepte: 120 mm
Aanzichtbreedte: min.92 mm
Uf-waarde frame: ≥1,1 W/(m²·K)
Glas-/paneeldikte: max.52 mm
Oppervlakken: Decoratiefolie/AutomotiveFinish
Luchtdichtheid: Klasse 4
Slagregendichtheid: Klasse 9A
Inbraakwering: SKG Klasse 2
Weerstand tegen windbelasting: Klasse C5/B5






