S 9000 NL Base
Strak, modern en verfijnd. GEALAN Base is een slank kozijn met karakter. De subtiele 15° schuinte geeft extra diepte aan de gevel en zorgt voor een stijlvolle uitstraling. Dankzij de robuuste opbouw van 120 mm bent u verzekerd van uitstekende isolatie en duurzaamheid.
Technische feiten die overtuigen
S 9000 NL staat voor maximale prestaties. Dankzij de innovatieve meerkamerstructuur, verhoogde sponningen en het unieke 3-dichtingssysteem behaalt dit kozijn uitstekende isolatiewaarden. Een Uw-waarde tot 0,75 W/(m²·K) is moeiteloos haalbaar. Dat betekent: minder energieverlies en meer wooncomfort.
Ook op het gebied van uitstraling biedt S 9000 NL alle vrijheid. Kies uit standaard basiskleuren, hoogwaardige folietechniek, realwood-structuren of acrylcolor. Zo stelt u uw kozijn volledig samen naar eigen smaak. Uw kozijn, uw kleur.
Het systeem is geschikt voor beglazing tot 52 mm dik. Of het nu gaat om zonwerend, geluidswerend of inbraakwerend glas: het past perfect binnen het systeem. De verhoogde sponning verbetert de isolatie tussen glas en profiel en verhoogt tegelijkertijd de inbraakwerendheid. SKG klasse 2 wordt met gemak behaald.
Het consequent doorgevoerde 3-dichtingssysteem beperkt koude luchtstromen en verhoogt de wind- en waterdichtheid. Doordat het draaikiepbeslag zich in de beschermde, droge tweede zone van het kozijn bevindt, blijft het beter beschermd tegen vocht en vuil. Dat verlengt de levensduur en verhoogt de betrouwbaarheid van het systeem.
S 9000 NL is techniek waarop u kunt bouwen.
Technische feiten die overtuigen
S 9000 NL staat voor maximale prestaties. Dankzij de innovatieve meerkamerstructuur, verhoogde sponningen en het unieke 3-dichtingssysteem behaalt dit kozijn uitstekende isolatiewaarden. Een Uw-waarde tot 0,75 W/(m²·K) is moeiteloos haalbaar. Dat betekent: minder energieverlies en meer wooncomfort.
Ook op het gebied van uitstraling biedt S 9000 NL alle vrijheid. Kies uit standaard basiskleuren, hoogwaardige folietechniek, realwood-structuren of acrylcolor. Zo stelt u uw kozijn volledig samen naar eigen smaak. Uw kozijn, uw kleur.
Het systeem is geschikt voor beglazing tot 52 mm dik. Of het nu gaat om zonwerend, geluidswerend of inbraakwerend glas: het past perfect binnen het systeem. De verhoogde sponning verbetert de isolatie tussen glas en profiel en verhoogt tegelijkertijd de inbraakwerendheid. SKG klasse 2 wordt met gemak behaald.
Het consequent doorgevoerde 3-dichtingssysteem beperkt koude luchtstromen en verhoogt de wind- en waterdichtheid. Doordat het draaikiepbeslag zich in de beschermde, droge tweede zone van het kozijn bevindt, blijft het beter beschermd tegen vocht en vuil. Dat verlengt de levensduur en verhoogt de betrouwbaarheid van het systeem.
Voordelen S 9000 NL Base
- S 9000 NL is een complete oplossing voor kozijnen, deuren en hefschuifsystemen. Eén systeem, eindeloze mogelijkheden. Dankzij glasdiktes tot 52 mm bent u verzekerd van comfort, veiligheid en uitstekende isolatie – ongeacht het type woning.
- Het vernieuwde 3-dichtingssysteem zorgt voor een stabiel binnenklimaat. Minder tocht. Minder warmteverlies. Meer wooncomfort.
- Met GEALAN-acrylcolor kiest u voor een kleurtechniek die zich al meer dan 40 jaar bewezen heeft. De kleur zit versmolten in het profiel en is daardoor extreem duurzaam en onderhoudsarm. Het resultaat: blijvend mooie kozijnen met een hoogwaardige uitstraling, jaar na jaar.
- De innovatieve STV lijmtechniek verbindt het glas en het draaideel tot één sterk geheel. Door het glas droog te verlijmen ontstaat extra stabiliteit en stijfheid. Dit zorgt voor duurzame, vormvaste kozijnen en deuren met een lange levensduur.
Eigenschappen S 9000 NL Base
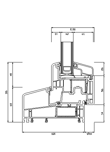
Systeembouwdiepte: 120 mm
Aanzichtbreedte: min.92 mm
Dichtingen: uniek 3-dichtingssysteem
Uf-waarde frame: ≥ 0,75 W/(m²·K)
Glas-/paneeldikte: max.52 mm
Oppervlakken: Folietechniek, realwood of acrylcolor
Luchtdichtheid: Klasse 4
Inbraakwering: SKG Klasse 2
Weerstand tegen windbelasting: Klasse C5/B5







